Apartamento de 1 dormitório e 25,80 m² à venda na Casa Verde – Tokyo Altino Residence
O Tokyo Altino Residence é o novo lançamento da Real North Incorporadora na Zona Norte de São Paulo.
Localizado na Rua Altino Antunes, 52, no bairro Casa Verde, o empreendimento reúne design moderno, funcionalidade e excelente custo-benefício, em uma das regiões que mais crescem e se valorizam na cidade.
Sobre a unidade
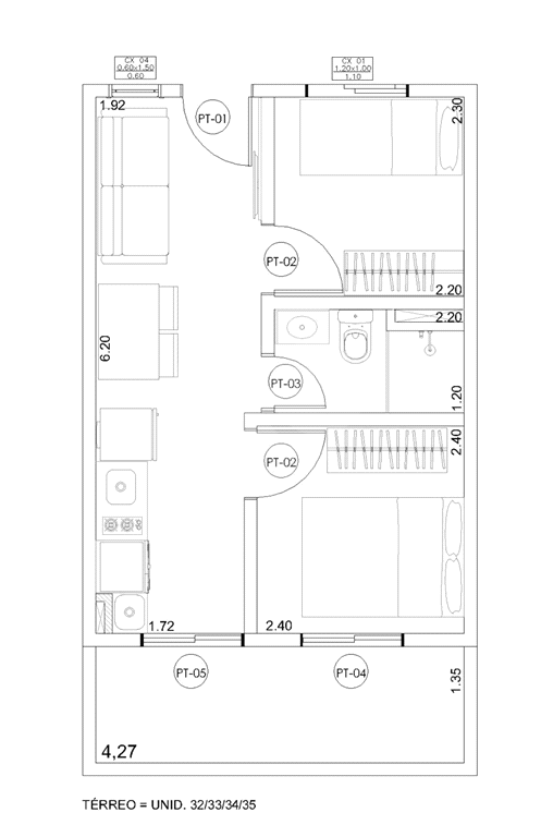
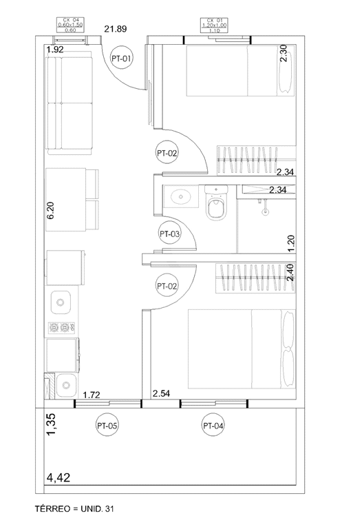
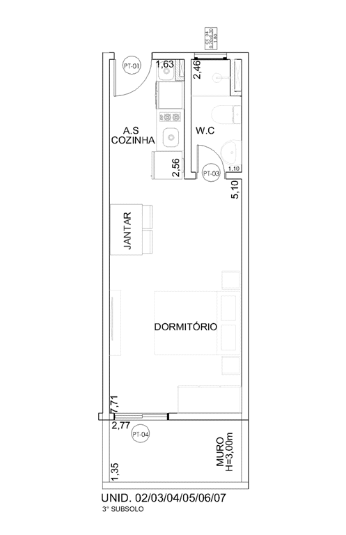
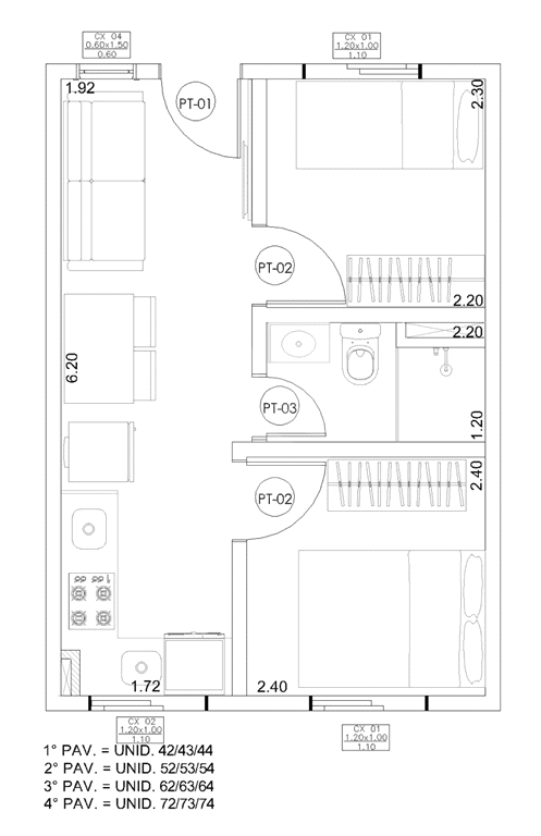
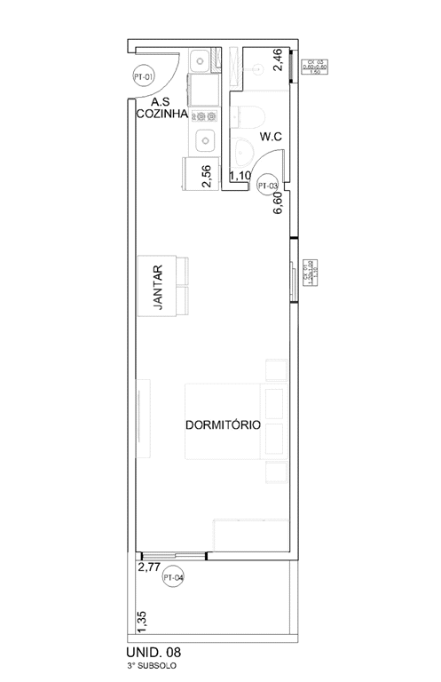
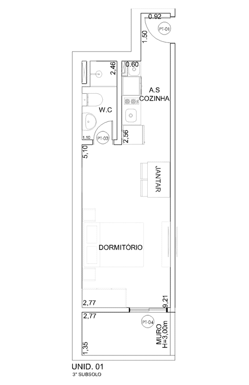
O apartamento de 25,80 m², localizado no 3º andar, foi projetado para oferecer praticidade, conforto e aproveitamento inteligente dos espaços.
A planta conta com 1 dormitório, sala integrada à cozinha e banheiro social, com ótima iluminação natural e ventilação cruzada.
Ideal para quem busca o primeiro imóvel ou deseja investir com segurança, próximo ao centro e com fácil acesso à Marginal Tietê e às principais avenidas da Zona Norte.
Diferenciais do Tokyo Altino Residence
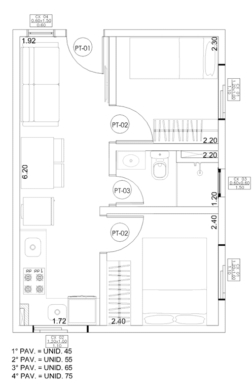
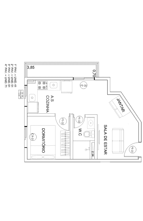
Studios e apartamentos de 1 e 2 dormitórios (24 a 35 m²)
Projeto moderno e funcional, com excelente padrão construtivo
Localização estratégica, próxima ao Center Norte e Santana Parque Shopping
Acesso rápido às avenidas Casa Verde e Eng. Caetano Álvares
Entrega prevista para 2028
Entrada facilitada e parcelas mensais a partir de R$ 1.000,00 durante o período de obras
Por que investir no Tokyo Altino Residence
A Casa Verde é um dos bairros com maior valorização da Zona Norte de São Paulo, oferecendo infraestrutura completa, transporte público e fácil acesso às principais vias da cidade.
O Tokyo Altino Residence apresenta unidades compactas e bem distribuídas, perfeitas para moradia própria ou investimento, com potencial de valorização acima da média regional.
O Tokyo Altino Residence é o novo lançamento da Real North Incorporadora na Zona Norte de São Paulo.
Localizado na Rua Altino Antunes, 52, no bairro Casa Verde, o empreendimento reúne design moderno, funcionalidade e excelente custo-benefício, em uma das regiões que mais crescem e se valorizam na cidade.
Sobre a unidade
O apartamento de 25,80 m², localizado no 3º andar, foi projetado para oferecer praticidade, conforto e aproveitamento inteligente dos espaços.
A planta conta com 1 dormitório, sala integrada à cozinha e banheiro social, com ótima iluminação natural e ventilação cruzada.
Ideal para quem busca o primeiro imóvel ou deseja investir com segurança, próximo ao centro e com fácil acesso à Marginal Tietê e às principais avenidas da Zona Norte.
Diferenciais do Tokyo Altino Residence
Studios e apartamentos de 1 e 2 dormitórios (24 a 35 m²)
Projeto moderno e funcional, com excelente padrão construtivo
Localização estratégica, próxima ao Center Norte e Santana Parque Shopping
Acesso rápido às avenidas Casa Verde e Eng. Caetano Álvares
Entrega prevista para 2028
Entrada facilitada e parcelas mensais a partir de R$ 1.000,00 durante o período de obras
Por que investir no Tokyo Altino Residence
A Casa Verde é um dos bairros com maior valorização da Zona Norte de São Paulo, oferecendo infraestrutura completa, transporte público e fácil acesso às principais vias da cidade.
O Tokyo Altino Residence apresenta unidades compactas e bem distribuídas, perfeitas para moradia própria ou investimento, com potencial de valorização acima da média regional.
O que tem no Condomínio
- Portaria
- Churrasqueira
- Área verde
- Playground
- Elevador